150 mq
3
2
In zona montana e tranquilla, panoramica e immersa nel verde, proponiamo in Vendita porzione di fabbricato a poca distanza dal borgo storico di Civitella del Tronto.
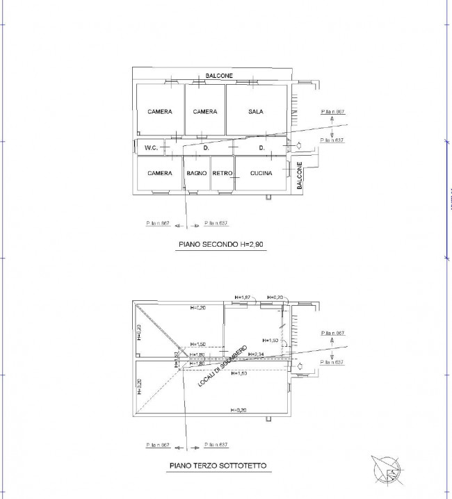
L'Appartamento, di circa 150 mq, è sito al secondo piano di una piccola palazzina senza condominio ed è composto da: ingresso, salotto, sala da pranzo con caminetto e cucina finestrata.
La zona notte comprende due camere matrimoniali e una cameretta, bagno con vasca e finestra e bagno di servizio.
L'immobile è servito da due balconi.
Conclude la proprietà un'ampia soffitta.
Possibilità di acquistare a parte box auto di 60 mq.

150 mq
3
2